puit

mõõdistamine

Soovite seadustada hoonet, tellida projekteerijalt eriosade või juurdeehituse projekti aga puuduvad joonised või on mõõdud puudulikud. Siis saan mina Teid aidata. TULEN kohale, teostan vajalikud mõõdistused. Tavaliselt kulub selleks pool päeva kuni päev. Projekteerijad tihtipeale ei jõua ega taha sellega tegeleda.

tehtud tööd >
paas

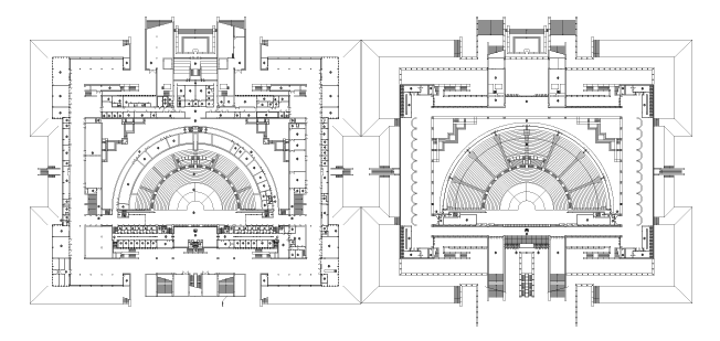
digitaliseerimine

Tellija poolt saadetud (loetava kvaliteediga, joonistel peavad olema mõõdud, kas foto või skaneeritud dokumentide kujul) paberprojektide AutoCAD-is (1:1) .dwg formaadis 2D plaanide/jooniste loomine. Kui soovite hoone jooniseid mudeldada 3D formaati, siis see on töömahukam ning vajab eraldi kokkulepet.

vaata lisaks >
marmor

projekteerimine

Hoone kasutusloa saamiseks peab olema digitaalne eriosade projekt, mis koosneb arhitektuursete ning eriosade joonisest ning seletuskirjast. Või hakkate alles maja ehitama. Koostan Teile kütte-, jahutuse- või ventilatsiooni EP, TJ joonised ning soovi korral ka seletuskirja.

hinnakiri >
tellis

konsultatsioonid

Kui Teil on villanud tüütute müügimeeste kütte-, jahutus, jm seadmete pähemäärimisest ning soovite leida optimaalset lahendust, siis TULEN kohale. Vaatan olemasoleva situatsiooni üle, teen kalkulatsioonid ja pakun oma lahenduse. Ning võtan Teie eest usaldusväärsetelt tegijatelt pakkumised.

minu tööd >


SUURUS
ei ole takistuseks.

Mulle meeldib vanade hoonete hingeelu tunnetamine ning nende mõõdistamine. Ka neid, kus täisnurki on vähe. Ja kui mõnel paberjoonisel puuduvad osad mõõdud, siis tuletan need. Kui on olemas maja kolm vaadet, siis suudan tuvastada ka neljanda. Ja olen koostanud nii väikesi korterite kuni Tallinna Linnahalli seitsme tasandini joonisteni välja.

loovus

kyte

Projekteerimine
toetub kogemustele.

Esimesed eriosade joonised sai tehtud juba 1980 aastate lõpus pliiatsiga paberil ja projekteerimislaual. 1990 aastate keskel sai ostetud juba esimene asjalik arvuti ja rakendused. Siiamaani ei ole ma piire tundnud. Ja kõiki eriosade (KVVK ja elekter) paigaldustöid juhendan ning teen objektidel ka ise ning sealt tulevad reaalsed teadmised.
Sadu tellijaid on minu töödega rahule jäänud ning majad köetud, jahutatud ja ventileeritud.


Kasutan ainult litsenseeritud tarkvara, viimase sõna tehnikat ja päikeseenergiat.


RÕÕMU pakub
rahulolev klient.

Piirangute puudumine, ausus, avatud suhted inimestega ja pikaajalised kogemused on aluseks heaks kliendisuhteks. Kuna olen aastaid gümnaasimumis projekteerimist õpetanud, siis olen veendunud, et suudan suhelda kõigiga. Kui ma midagi luban, siis teen seda ja kui eksin, siis vabandan. Tähtaegadest kinnipidamine on minu jaoks väga tähtis. Ja ma võtan alati telefoni vastu või helistan esimesel võimalusel tagasi ja vastan operatiivselt e-kirjadele. Kui töö lõpetan ning üle annan, siis surun kätt ja tänan, et mind usaldasite.

loovus

digitaliseerimine, digitaliseerimine dwg-formaati, digitaliseerimine elektroonilisse formaati, joonise digitaliseerimine, jooniste digitaliseerimine, projekti digitaliseerimine, projektide digitaliseerimine, paberprojekti digitaliseerimine, paberprojektide digitaliseerimine, paberkandjal projekti digitaliseerimine, paberkandjal projektide digitaliseerimine, vana projekti digitaliseerimine, vanade projektide digitaliseerimine, vana maja projekti digitaliseerimine, paberkandjal olevate jooniste digitaliseerimine, mõõdistustulemuste digitaliseerimine, käsitsi valmistatud projektide ja jooniste digitaliseerimine, olemasolevate jooniste ja paberkandjal projektide digitaliseerimine.